Salle polyvalente à Grône
← Retour aux projets

Salle polyvalente à Grône

Publics, Concours

Infos

Grône (VS)
Maître de l'ouvrage: Commune de Grône
Photographe : Linda Photography Sàrl
2010-2017

Description

Issu d’un concours de projets d’architecture en procédure ouverte (en 2000), ce projet s’inscrit dans le cadre du développement du site scolaire de la Commune de Grône qui comprend une école primaire, un cycle d’orientation et des locaux sportifs (salles de sport, piscine).

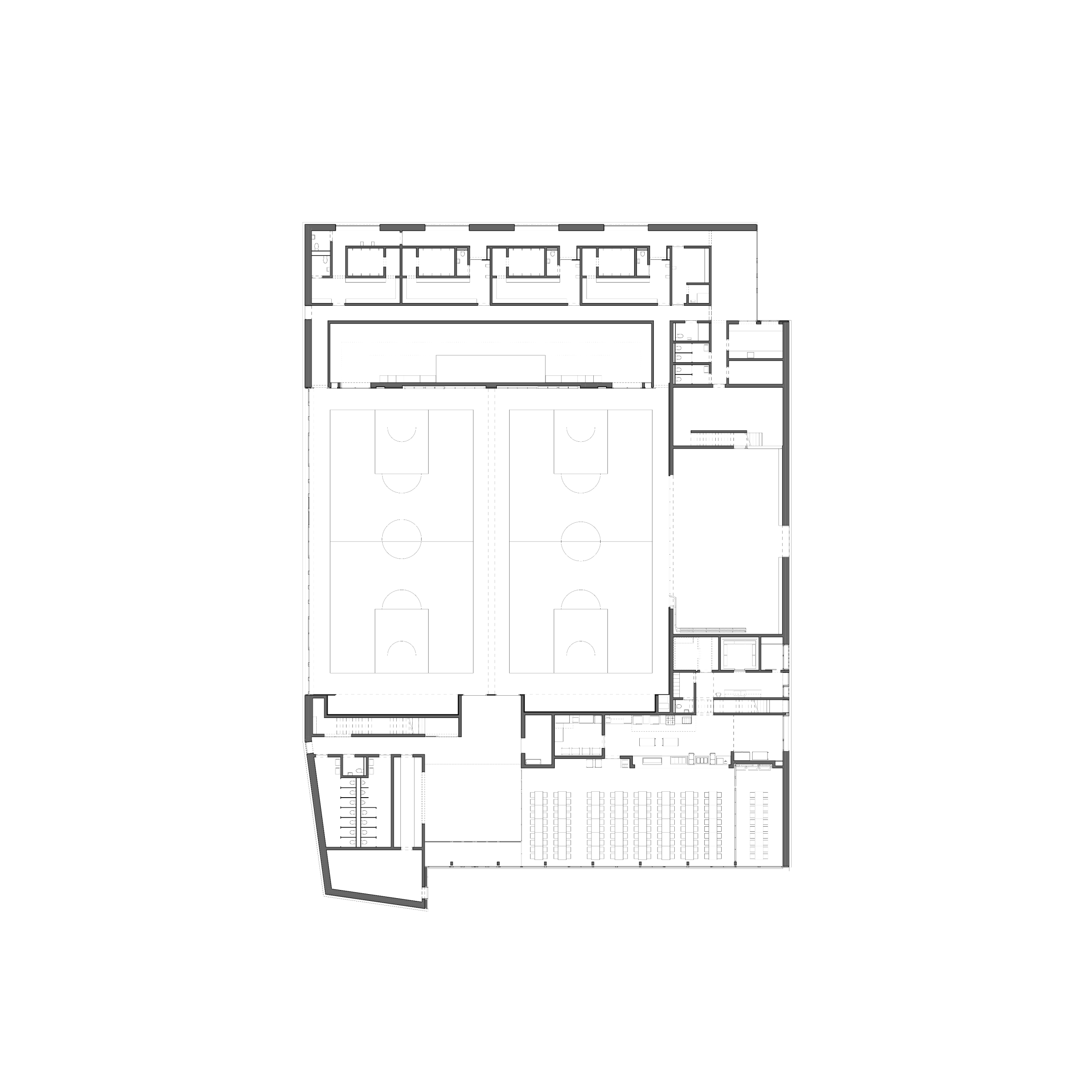
La salle polyvalente est composée d’un volume principal accueillant deux salles de gymnastique ainsi qu’une scène, complétée par deux corps de bâtiment latéraux plus bas qui intègrent les zones d’accueil et de services. L’unité du projet est garantie par letraitement unitaire des façades en bois aux lignes horizontales. Un réfectoire, avec une cuisine professionnelle, complètent le dispositif d’accueil.