Réhabilitation d’une grange protégée en Gruyère
← Retour aux projets

Réhabilitation d’une grange protégée en Gruyère

Privés

Infos

Villars-sous-Mont (FR)
Maître de l’ouvrage : privé
Photographe : Alain Kilar pour le SBC
2022-2024

Description

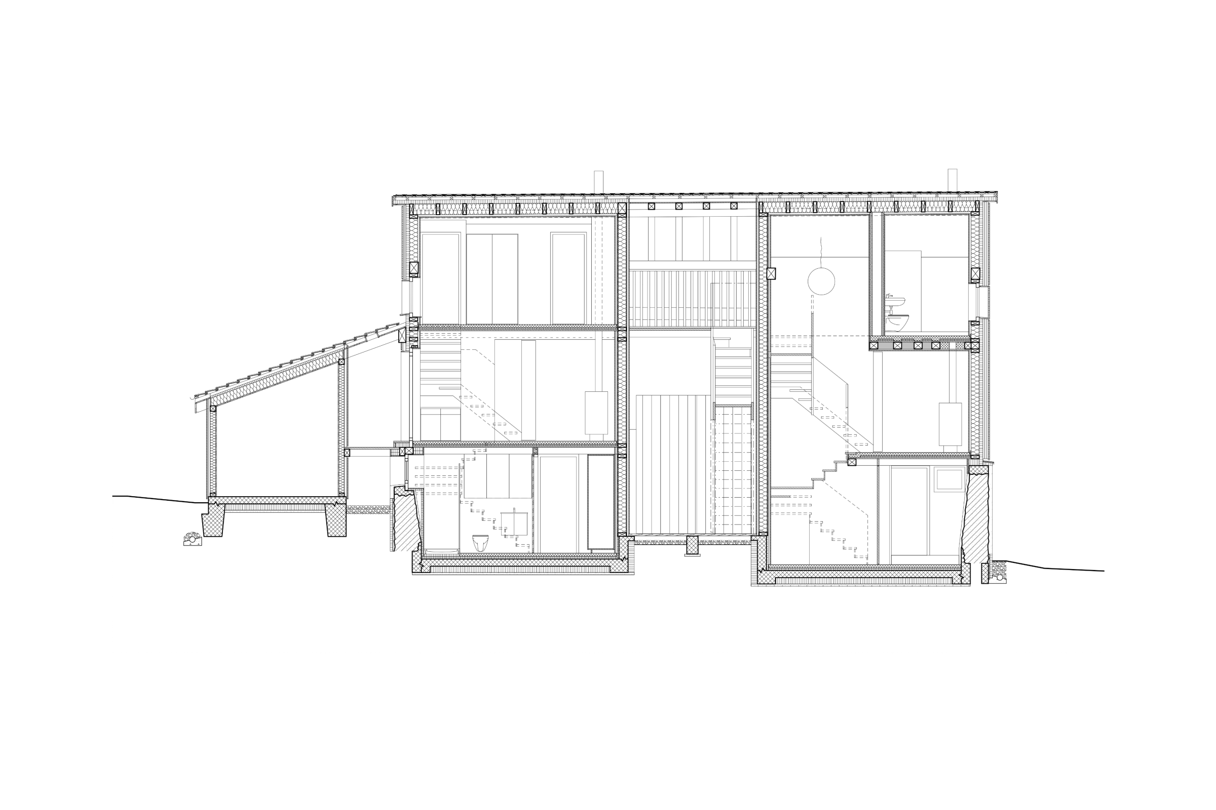
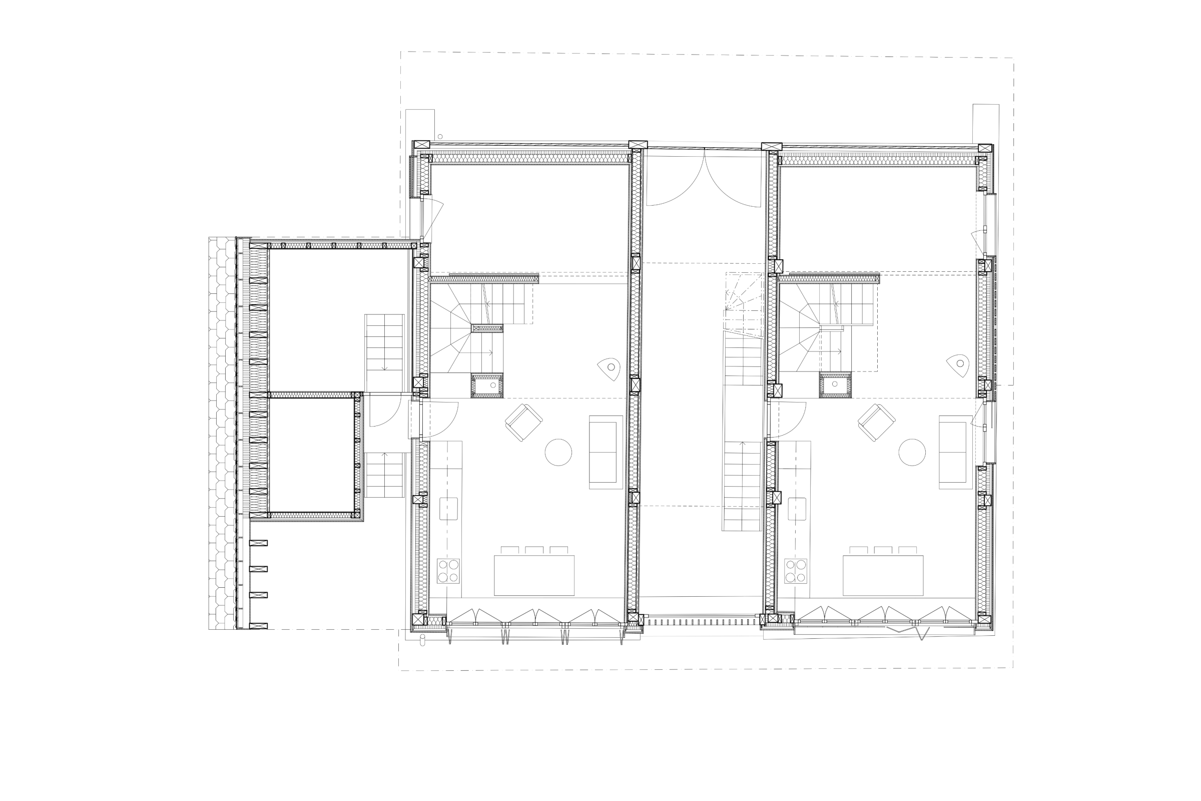
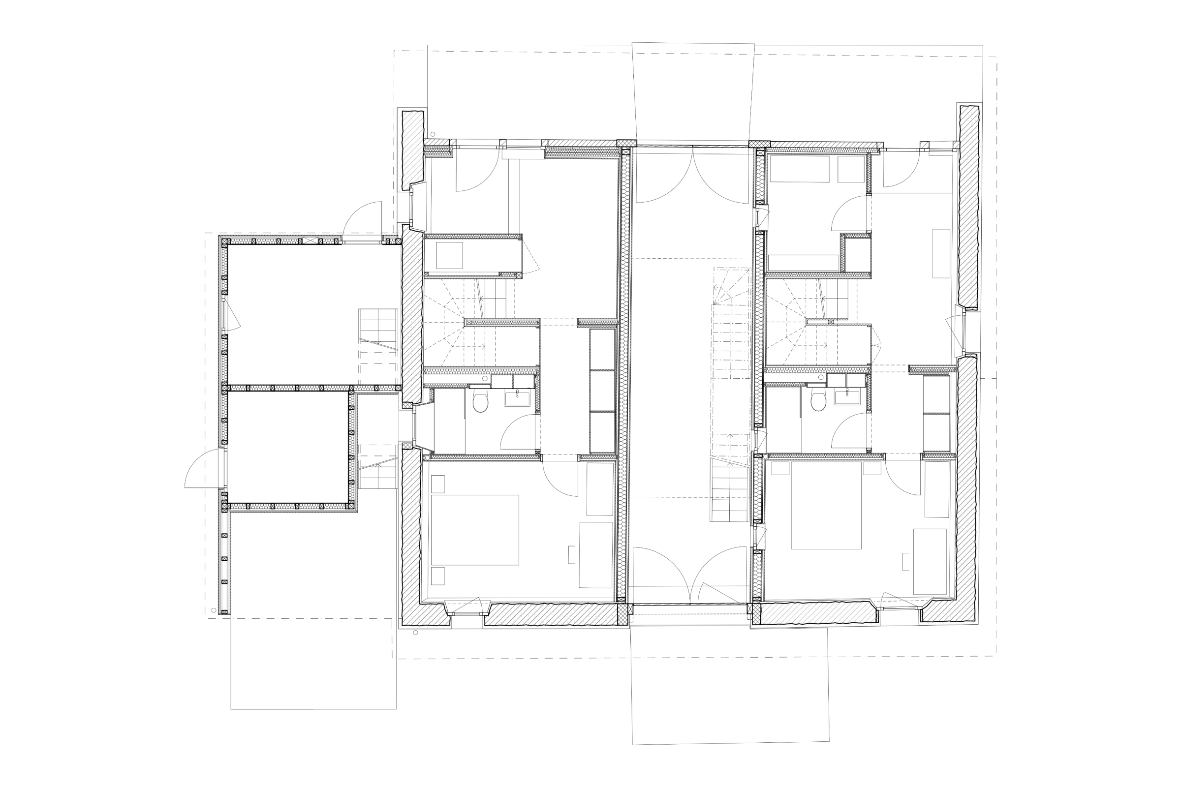
Deux logements ont été aménagés dans cette grange protégée située dans le centre du village de Villars-sous-Mont, datée de 1773, tout en maintenant la structure originale. Côté village, les façades laissent à peine deviner la nouvelle affectation du bâtiment, tandis que vers le sud la pièce principale de chaque logement s’ouvre généreusement vers le verger. Chaque pièce bénéficie de lumière naturelle et d’une vue vers les Vanils ou le village.

Le nouveau bâtiment répond aux dernières normes en matière d’efficience énergétique et les anciennes fosses à lisier, permettent de stocker l’eau de pluie et d’alimenter les sanitaires et l’arrosage.