Réhabilitation d’une grange dans le Vully
← Retour aux projets

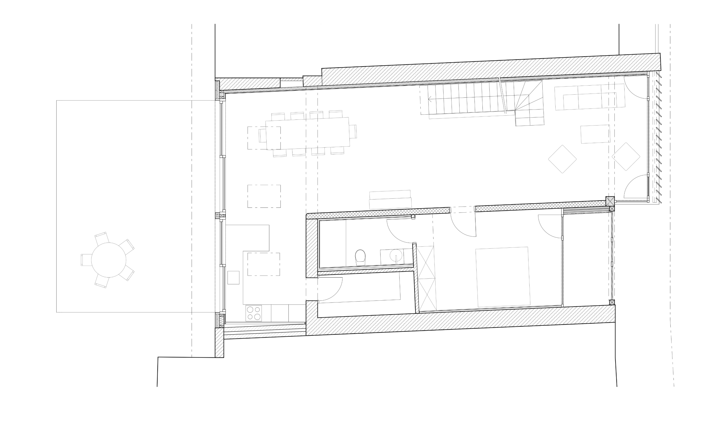
Réhabilitation d’une grange dans le Vully

Privé

Infos

Mont-Vully (FR)
Maître de l’ouvrage : privé
Photographe : Francesco Ragusa
Réalisation : 2019-2022

Description

Aménagement d’une habitation dans une grange protégée dans le village de Nant. Les caractéristiques du bâtiment ont été maintenues tout en amenant de la lumière dans le nouveau logement qui bénéficie de grandes ouvertures vers le jardin et les vignes à l’arrière.