Nouveau centre sportif à Siviriez
← Retour aux projets

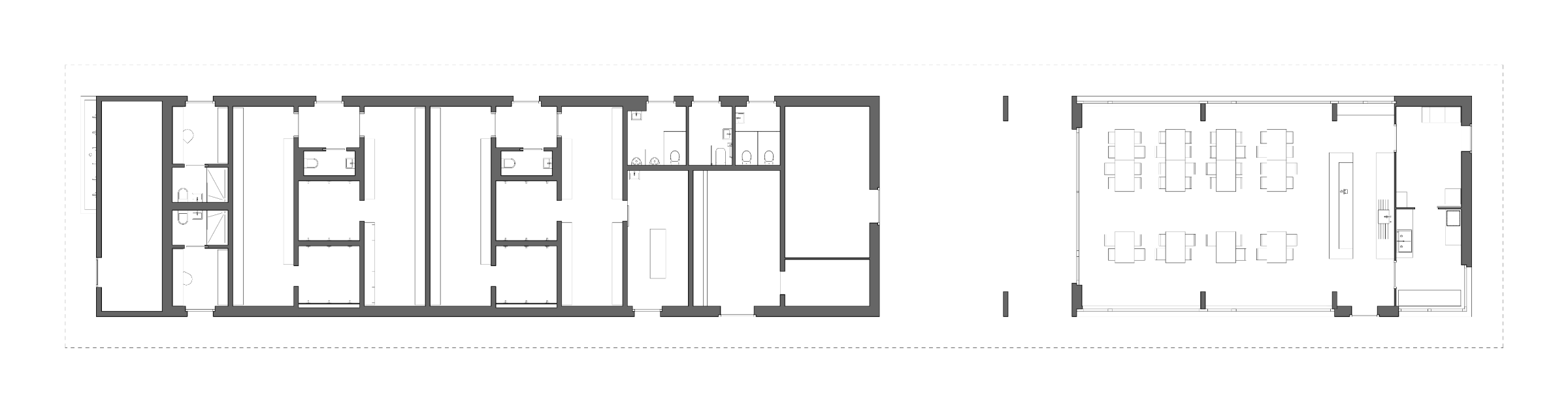
Nouveau centre sportif à Siviriez

Publics

Infos

Siviriez (FR)
Maître de l'ouvrage : Commune de Siviriez
Photographe : Francesco Ragusa 
2018-2023

Description

Le nouveau centre sportif, avec ces deux terrains de football et le bâtiment de services allongé qui le borde, s’intègre dans le paysage doucement vallonné de la région. Les vestiaires, et la buvette sont reliés entre eux par un généreux couvert permettant d'accueillir différents types de manifestations.