Maison unifamiliale à Jouxtens-Mézery
← Retour aux projets

Maison unifamiliale à Jouxtens-Mézery

Privés

Infos

Jouxtens-Mézery (VD)
Maître de l’ouvrage : privé
Photographe : Yves Eigenmann
2013-2015

Description

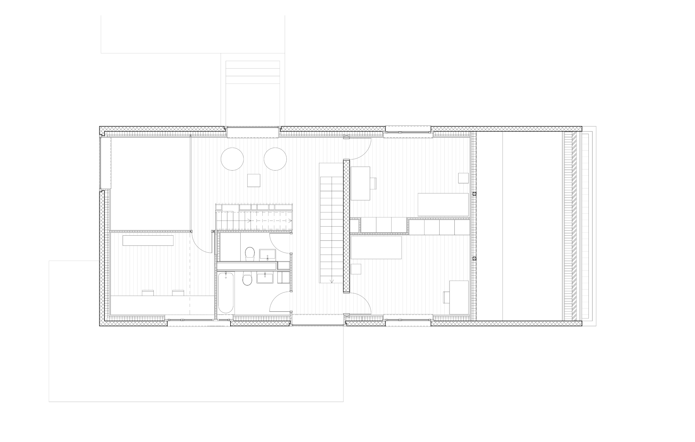
La maison de forme longiligne implantée en bordure de la route de quartier, dégage un grand espace extérieur privatif au sud. Sa toiture asymétrique à deux pans, permet de répondre aux fortes contraintes règlementaires. Le programme se développe sur quatre niveaux, les espaces de jour bénéficient de généreux vides de hauteur. L'enveloppe extérieure minérale réalisée en béton bouchardé assure sa durabilité, une grande inertie thermique et une bonne intégration dans le site.