Maison individuelle à Sugiez
← Retour aux projets

Maison individuelle à Sugiez

Privés

Infos

Sugiez (FR)
Maître de l’ouvrage : privé
Photographe : Francesco Ragusa
2024-2025

Description

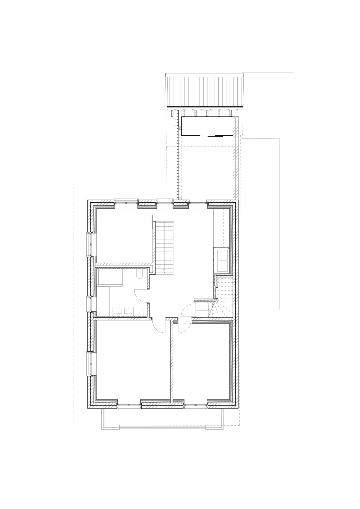
Transformation d’une maison au cœur du village de Sugiez. Le projet reprend la volumétrie existante, développe des nouvelles pièces à vivre au rez-de-chaussée et réorganise le premier étage en portant un soin particulier à la matérialisation, à la fois minérale et chaleureuse, des façades et des espaces intérieurs.