Maison à Bourguillon
← Retour aux projets

Maison à Bourguillon

Privés

Infos

Bourguillon (FR)
Maître de l'ouvrage : privé
Photographe : Olivier Savoy
2008-2010

Description

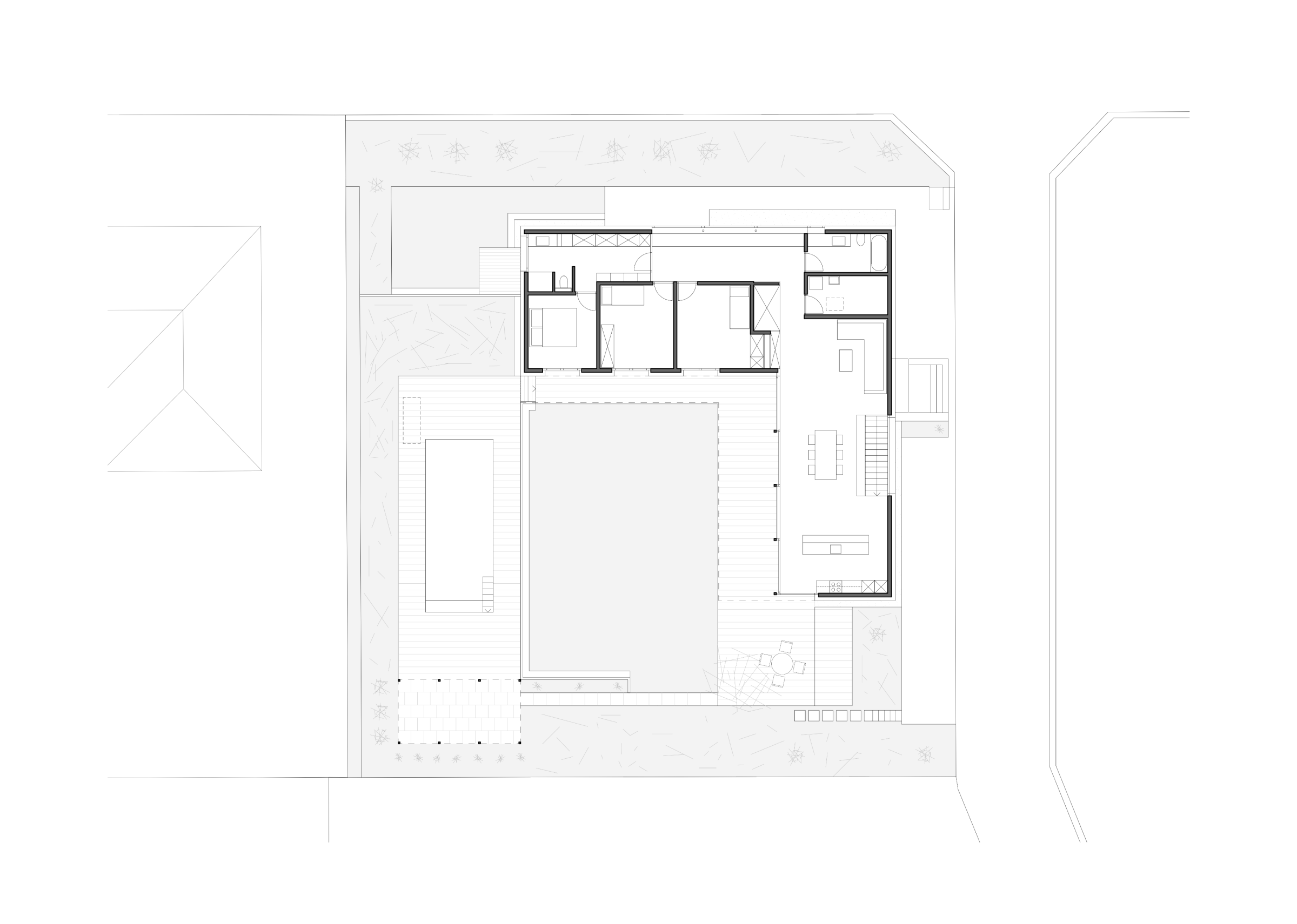
Construction d’une maison dont le plan en L, permet de jouer avec la pente naturelle du terrain et de dégager un espace extérieur privatif abrité du voisinage, délimité par une piscine extérieure. L’appartement principal est distribué sur deux niveaux. Un logement de deux pièces occupe un des angles du niveau inférieur.