Ecole primaire de la Léchère à Bulle
← Retour aux projets

Ecole primaire de la Léchère à Bulle

Publics

Infos

Bulle (FR)
Maître de l’ouvrage : Ville de Bulle
Photographe : Corinne Cuendet
2013-2018

Description

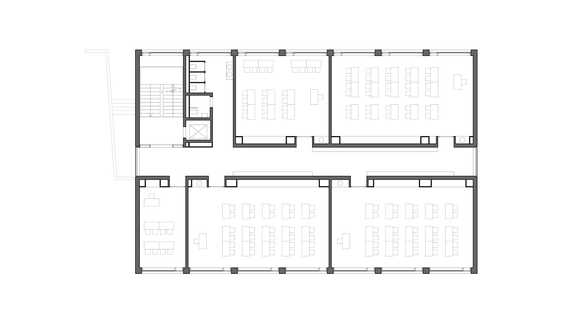
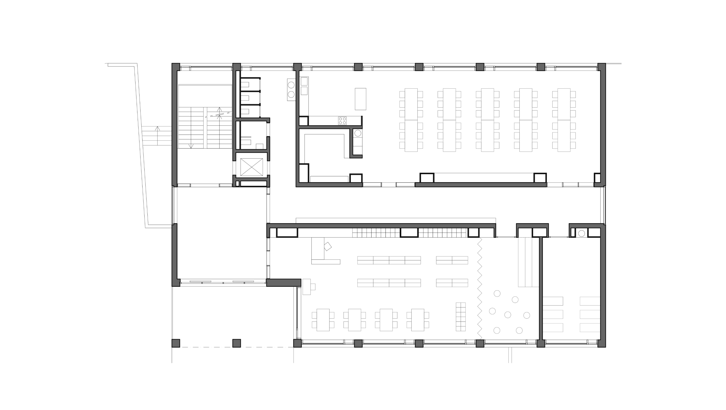
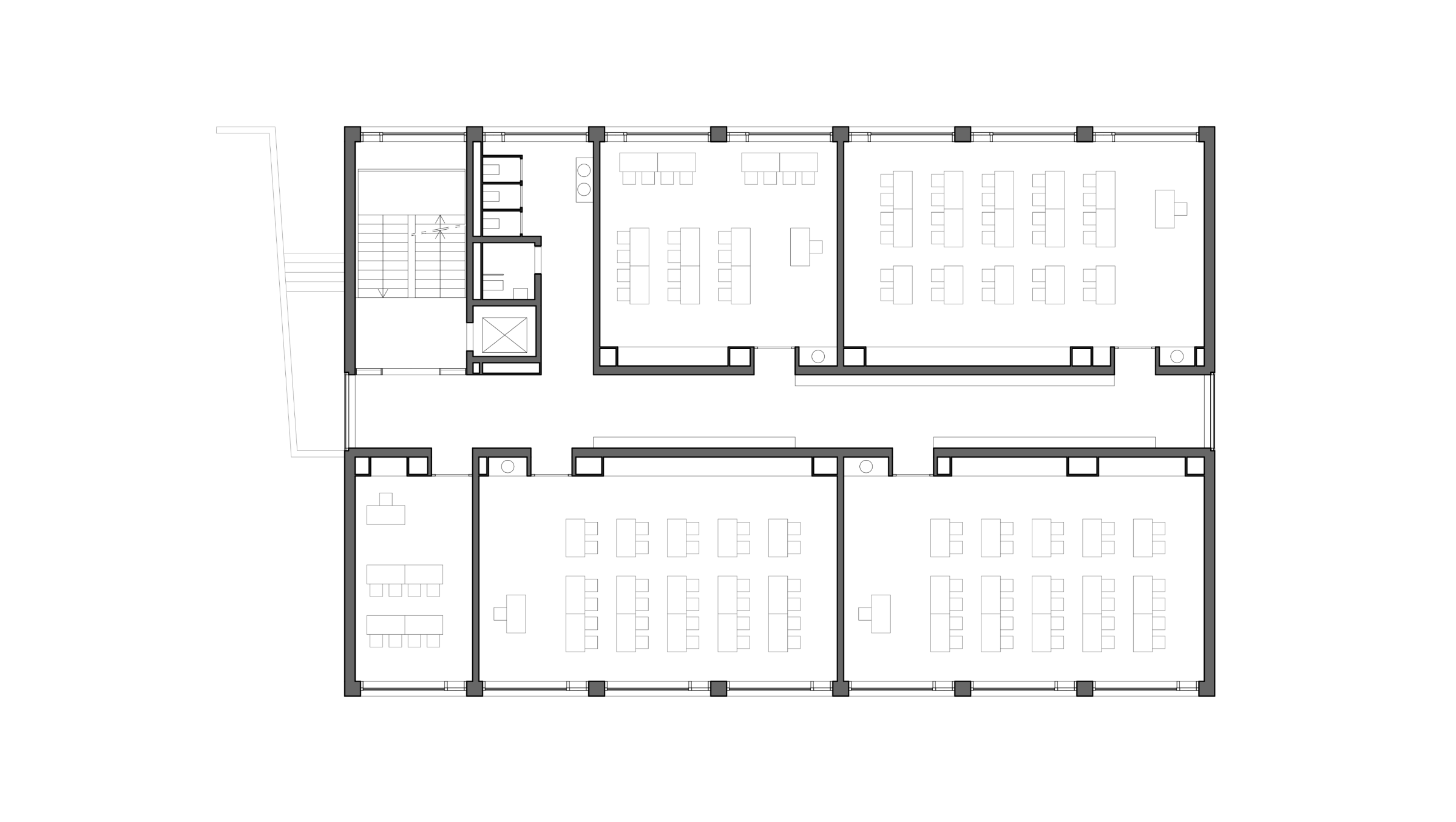
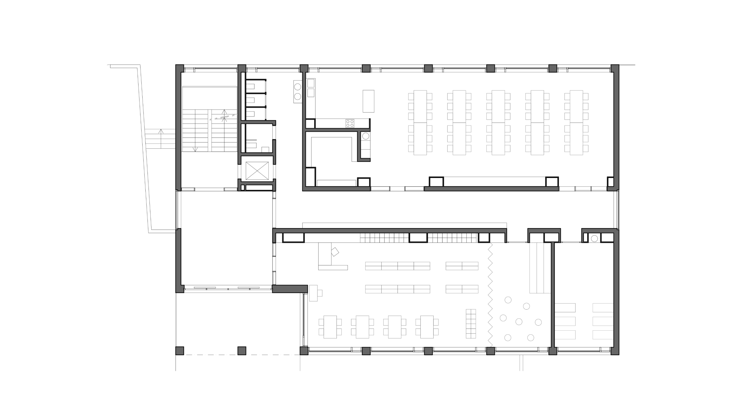
Construction d’un nouveau bâtiment scolaire sur le site de la Léchère. Il s’agit d’une structure en bois. Le projet est issu d’un mandat d’étude parallèle lancé fin 2013 qui visait la requalification d’une zone d’environ 6'000 m2 de cette partie de la ville. Grâce à sa structure en bois, la nouvelle école a pu être construite dans un laps de temps relativement court, pour répondre aux besoins scolaires.