Aménagement d’un logement dans une grange à Chénens
← Retour aux projets

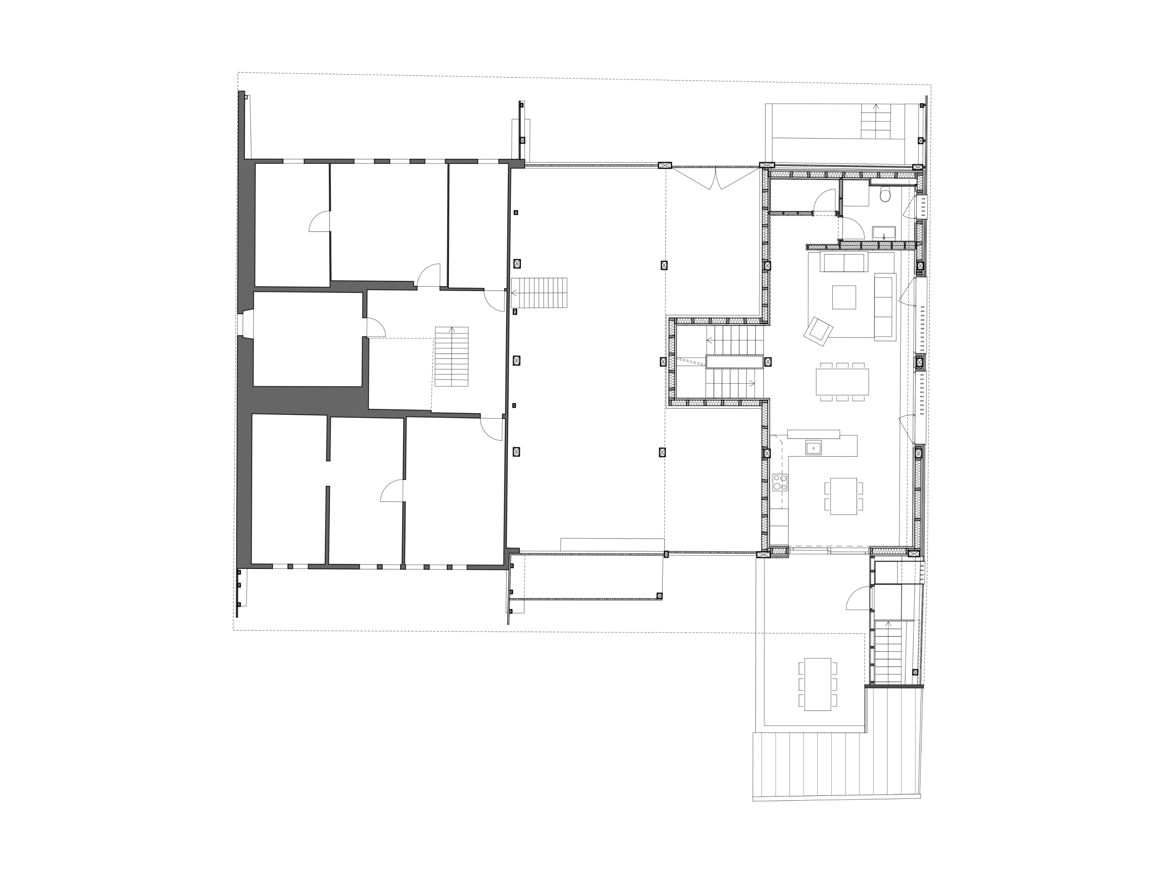
Aménagement d’un logement dans une grange à Chénens

Privés

Infos

Chénens (FR)
Maître de l’ouvrage : privé
Photographe : Francesco Ragusa
2020-2022

Description

Création d’un logement dans une partie du rural d’une ferme typique fribourgeoise, située hors zone à bâtir. Le logement est organisé en triplex, il bénéficie d’une terrasse-loggia accessible depuis le séjour situé au premier étage. Les espaces de vie s’orientent vers la zone de verdure et de calme.